Neubau Mehrfamilienhaus „Am Furtbach“
Im Sinne der inneren Verdichtung soll die bestehende Liegenschaft abgebrochen werden und mit einem neuen Mehrfamilienhaus, welches zum jetzigen Projektstand 12 Wohnungen vorsieht, neu bebaut werden.
Typologie
Neubau, Wohnen
12 Wohnungen
Bauherrschaft
JEGA AG Immobilien + Generalunternehmen, 8575 Bürglen
Leistungsumfang
Machbarkeitsstudie, Vorabklärungen, Projektentwicklung, Vorprojekt
Status
Vorprojekt
in Bearbeitung
Bilder
engler gmbh
Erweiterung Bürogebäude
Das Projekt sieht die Erweiterung des bestehenden Bürogebäudes um einen zweistöckigen Anbau mit weiteren Büroräumlichkeiten vor. Durch die Anordnung der neuen Kubatur kann die bestehende Erschliessungsfläche mitgenutzt werden, was eine effiziente Nutzung der bebaubaren Grundstückfläche ermöglicht.
Typologie
Erweiterung, Gewerbe
Bauherrschaft
JEGA AG Immobilien + Generalunternehmen, 8575 Bürglen
engler architektur + bad gmbh, 8575 Bürglen
Leistungsumfang
Vorprojekt, Bauprojekt, Baubewilligungsverfahren, Ausführungsplanung, Ausschreibung, Offertwesen, Vergabeverhandlungen, Vertragswesen, Bau-und Projektleitung, Termin-und Kostenkontrolle, Gesamtleitung
Status
Baubewilligungsverfahren
in Bearbeitung
Bilder
engler gmbh
Neubau Mehrfamilienhaus „Schlossgasse“
Projektbeschrieb in Arbeit.
Typologie
Neubau, Wohnen
9 Eigentumswohnungen
Bauherrschaft
Privat
Leistungsumfang
Machbarkeitsstudie, Vorabklärungen, Projektentwicklung, Vorprojekte, Bauprojekte, Baubewilligungsverfahren
Status
Baubewilligungsverfahren
in Bearbeitung
Projektverlauf
- Projektentwicklung Frühjahr/Sommer 2023
- 1. Baueingabe / 1.Auflage, August 2023
- 2. Baueingabe / 2.Auflage, Januar 2024
- 3. Baueingabe / 3.Auflage, Juni 2024
- 4. Baueingabe / 4.Auflage, Februar 2025
- Mai 2025 : Rückzug Projekt
- Januar 2026 : "restart" Projekt
- 1. März 2026 : Inkrafttreten der neuen Ortsplanung Bürglen
- 5. März 2026 : Eingabe Bauprojekt
Neubau Mehrfamilienhaus „Höfli“
Durch den Abbruch des Gasthaus Bahnhof mit seinen Anbauten konnten die seit Jahren fragwürdigen Zustände in der unmittelbaren Nähe zum Bahnhof behoben werden. Auf dem Grundstück konnte ein Mehrfamilienhaus mit 15 grosszügigen Eigentumswohnungen realisiert werden.
Typologie
Neubau, Wohnen
15 Eigentumswohnungen
Bauherrschaft
JEGA AG Immobilien + Generalunternehmen, 8575 Bürglen
Leistungsumfang
Architektur : Vorabklärungen, Vorprojekte, Bauprojekt, Baubewilligungsverfahren, Ausführungsplanung, Ausschreibung, Offertwesen, Vergabeverhandlungen, Vertragswesen, Bau-und Projektleitung, Termin-und Kostenkontrolle, Gesamtleitung
Vermarktung : Projektunterlagen, Verkaufsunterlagen, Maklerarbeiten, Kundenbetreuung/Begleitung
Status
abgeschlossen
Fachplaner
Ingenieurarbeiten | Kurt Hungerbühler AG, Schönenberg TG
Ingenieur HLKS | Novus Engineering GmbH, Frauenfeld
Elektroplanung | elektro-werk gmbh, Amriswil
Bilder
engler gmbh | OST Renders, Winterthur [+]
Neubau Mehrfamilienhaus mit Tiefgarage
Durch Abbruch des ungenutzten Ökonomiegebäudes entstand Raum für ein zeitgemässes Mehrfamilienhaus mit Tiefgarage. Dieses ergänzt die 2013/14 nach Brand sanierte Bestandsliegenschaft an der Weinfelderstrasse auf heute insgesamt 8 Wohneinheiten.
Typologie
Neubau, Wohnen
6 Mietwohnungen
Bauherrschaft
Immobiliengesellschaft | Privat
Leistungsumfang
Vorabklärungen, Vorprojekte, Bauprojekt, Baubewilligungsverfahren, Ausführungsplanung, Ausschreibung, Offertwesen, Vergabeverhandlungen, Vertragswesen, Bau-und Projektleitung, Termin-und Kostenkontrolle, Gesamtleitung
Status
abgeschlossen
Fachplaner
Ingenieurarbeiten | Kurt Hungerbühler AG, Schönenberg TG
Ingenieur HLKS | Novus Engineering GmbH, Frauenfeld
Elektroplanung | elektro-werk gmbh, Amriswil
Bilder
engler gmbh
Neubau Geschäftshaus Wydenstrasse
Ergänzend zum 2011-2013 erstellten Erweiterungsbau Haus C bestand die Planungsaufgabe darin die Altbauten rückzubauen und ein zeitgemässes Arbeitsumfeld für das stetig wachsende Unternehmen der IT-Branche zu erstellen. Der prägnante Baukörper des Haus A dient heute dem schlichten dennoch repräsentativen Haupteingang der Gebäudegruppe und bietet grosszügige Arbeitsplätze sowie Schulungs-und Besprechungsräumlichkeiten. Das Haus B, der Mittelbau, ist Schnittstelle und schafft Raum für Begegnungen sowohl für Mitarbeiter und Kunden des Unternehmen.
Typologie
Neubau, Erweiterung, Gewerbe
Bauherrschaft
root-service ag, 8575 Bürglen [+]
Leistungsumfang
Projektentwicklung, Bedürfnisabklärungen, Vorprojekt, Bauprojekt, Baubewilligungsverfahren, Ausführungsplanung, Ausschreibung, Vergabeverhandlungen, Vertragswesen, Bau-und Projektleitung, Termin-und Kostenkontrolle, Gesamtleitung
Status
abgeschlossen
Fachplaner
Ingenieurarbeiten | Kurt Hungerbühler AG, Schönenberg TG
Ingenieur HLKS | Novus Engineering GmbH, Frauenfeld
Elektroplanung | Kurt Baldinger AG, Weinfelden
Bilder
engler gmbh
Ausstellung L&M Glasduschen
Ergänzend zum Hauptsitz in Volketswil, mit Büro und Ausstellungsräumlichkeiten wurde eine Präsentationsmöglichkeit der Produkte in der Region Ostschweiz angestrebt. Die Räumlichkeiten in Oberbüren sind Ausgangslage an verkehrstechnisch gut gelegener Lage. Aufgabe bestand darin auf einer Fläche von rund hundert Quadratmetern einen Überblick zur umfangreichen Produkteplatte von L&M | Hüppe abzubilden, einen Besprechungsraum, sowie einen vollwertigen Arbeitsplatz zu realisieren. Mit einer kompakten Anordnung von Ausstellungskojen wird ein guter Querschnitt zum Produkteportfolio von Hüppe Duschentrennwänden abgebildet. Zeitgleich konnte eine Plattform für die Produkte von Not Only White, einem Designlabel, für designorientierte Badprodukte geschaffen werden.
Typologie
Gewerbe
Bauherrschaft
L&M Glas-Duschen GmbH, 8604 Volketswil
Leistungsumfang
Entwurf, Ausstellungskonzept, Bauprojekt, Ausführungsplanung, gestalterische Gesamtleitung
Status
abgeschlossen
Hersteller
Hüppe, Not Only White
Bilder
L&M GmbH, Hüppe GmbH, Not Only White, engler GmbH
Link
L&M Glas-Duschen GmbH, 8604 Volketswil [+]
Not Only White, 8400 Oostende, Belgien [+]
Webseitenprojekt | Werkschau
Die Aufgabe bestand darin eine Plattform für laufende Projekte der JEGA AG zu schaffen zeitgleich aber auch einen Einblick in das umfangreiche Schaffen von Firmengründer Jürg Engler, Architekt zu ermöglichen. Die Webseite soll aktuelles mit der Firmengeschichte verbinden. In Zusammenarbeit mit Dino Solazzo, Pixelweb – Winterthur, ist eine Werkreplik entstanden, welche einen kleinen Einblick über 50 Jahre Firmengeschichte gewähren. Der Firmengründer zeichnet sich verantwortlich für über 500 Bauten in der Ostschweiz welche unter Engler + Maag Architekturbüro AG und JEGA Generalunternehmen AG seit 1976 entstanden sind.
Typologie
Publikation
Auftraggeber
JEGA AG Immobilien + Generalunternehmen, 8575 Bürglen [+]
Leistungsumfang
Konzept, Gestaltung, Bildrecherche, Text
Status
abgeschlossen
Webdesign
Pixel WebDesign, Dino Solazzo, 8400 Winterthur [+]
Erweiterung Einfamilienhaus „Türliacker“
Das Projekt sieht die räumliche Erweiterung sowie Reorganisation des Erdgeschosses vor um dem gewachsenen Raumbedarf der jungen Familie Rechnung zu tragen. Der geplante Erweiterungsbau soll den Wohnbereich mit Küche aufnehmen, sowie als Bindeglied zwischen den im Hochparterre liegenden Räumlichkeiten und Garten dienen.
Typologie
Erweiterung, Wohnen
Bauherrschaft
Privat
Leistungsumfang
Vorabklärungen, Entwurf, Vorprojekt, Bauprojekt, Baubewilligungsverfahren, Ausführungsplanung, Ausschreibung, Vergabe-und Vertragswesen, Bauleitung, Kostenkontrolle
Status
abgeschlossen
Fachplaner
Ingenieurarbeiten | Kurt Hungerbühler AG, Schönenberg TG
Bilder
engler gmbh
Sanierung Bürofassade
Das ursprünglich verwendete Fassadenbekleidungsmaterial der Firma BRUAG hat sich bereits nach einjähriger Nutzungsdauer als untauglich erwiesen. Nach eingehender Materialrecherche und Neugestaltung der Fassade wurde diese in Lärche neu erstellt und um ein Vordach ergänzt.
Typologie
Sanierung, Gewerbe
Bauherrschaft
JEGA AG Immobilien + Generalunternehmen, 8575 Bürglen
Leistungsumfang
Materialrecherche, Entwurf, Gestaltung, Ausführungsplanung, Bauleitung
Status
abgeschlossen
Unternehmer
Fassadenbekleidung | August Brühwiler AG, Balterswil
Bilder
engler gmbh
Machbarkeitsstudie Erweiterung Geschäftsliegenschaft
Aufgabenstellung war zu prüfen wie die vorhandene Gebäudeansammlung reorganisiert und erweitert werden kann um den zukünftigen Anforderungen des familiengeführten Handwerksbetriebes im Haustechnikbereich gerecht zu werden. Die Studie sieht vor die Bestandsgebäude von unwirtschaftlichen Anbauten zu befreien, diese mit einem unterkellerten Verbindungsbau zu verbinden und um zusätzlich Nutzflächen zu erweitern. Weiter soll die Warenanlieferung durch Lieferanten sowie Parkierung der Firmeneigenen Fahrzeugflotte übersichtlicher sowie verkehrssicher ausgestaltet werden.
Typologie
Machbarkeitsstudie, Gewerbe
Bauherrschaft
Baumann Gebäudetechnik AG, 8575 Bürglen [+]
Leistungsumfang
Vorabklärungen, Gebäudeaufnahmen, Gebäudeanalyse, Bedürfnisabklärungen, Vorprojekt, Kostenschätzung
Status
abgeschlossen
Projekt nicht ausgeführt
Bilder
engler gmbh
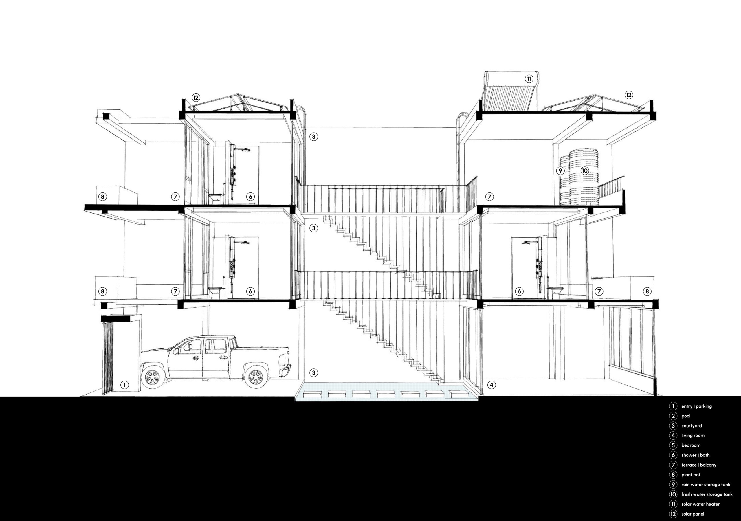
Konzeptstudie Stadthaus
Typologie
Wohnen, EFH
Status
Konzept
Ausgangslage
Grundstücksfläche 100 m2 | b. 5.00m x t. 20.00m
Neubau Mehrfamilienhaus mit Tiefgarage
Typologie
Neubau, Wohnen
6 Wohnungen
Status
Machbarkeits/Projektstudie
nicht ausgeführt
Neubau 2 Mehrfamilienhäuser mit Tiefgarage
Typologie
Neubau, Wohnen
2 MFH, 5/8 Wohnungen
Status
Machbarkeits/Projektstudie
nicht ausgeführt
Neubau Gewerbehaus
Typologie
Neubau, Gewerbe
Status
abgeschlossen
